
東京都内から郊外へ移住。
ご夫婦と3人のお子さんが住まう...
共働き子育てを助ける家。
流山の家が、
コロナ禍での設計~工事を経て、
3月に無事に竣工いたしました!!
通常は進捗と共にブログをUPしていましたが、
今回の家づくりでは、お姿出しNGでしたので、
完成した時に、竣工写真として、
UPさせていただくことになっておりました。
施主さんから、
- 自分たちも参考にさせてもらったので、
- ブログUPしてくださってかまいません
と優しいお言葉。
( 感謝です( ;∀;) )
コロナ禍の今、
働き方や住まい方の価値観が
これまでと違ってきています。
住まい選びを考えていらっしゃる方の参考になれば...
という施主さんのお気持ちに甘えさせていただき、
この土地に出合うまでの経緯をご紹介いたします。
今日は、
施主さんとの出合い~土地探し~プラン二ングまでを♪
施主さんとの出会いは
実は、5年前くらい前に遡ります。
都内で家を建てるため、
土地探しからお手伝い。
当時は、納得できる土地に出合えず、
一旦家づくりを諦められたご一家でした。
当時はお子さんひとりでしたが、
5年ぶりにお会いすると...
子宝に恵まれて、お子さん3人!
賃貸では手狭となり、
家づくりは喫緊の課題。
一番上のお子さんの小学校入学に合わせ、
改めて土地探しをしての、
家づくりがスタートしたのです。
土地探し...
東京で生まれ育ったご主人に、
都内を離れることの抵抗感があったので、
都内も視野に入れて土地探し。
また、
自治体のハザードマップを確認されつつ、
エリアをいくつかに絞って探されました。
↓ 参考のひとつに
国交省 ハザードマップポータルサイト
( こちらも確認されると良いと思います )
土地選びのノウハウは、
他にもたくさん情報があるので、
ここではこれ位にしますね。。(^-^;
条件が狭いと決めやすいのですが、
ある意味、、条件が広かったので
迷いも多かったことでしょう。
土地探しはある意味スピードが命。
土地を見つけてから
設計事務所に依頼される方も多いですが、
本来なら、土地探しから
設計事務所を入れた方が良いと思います。
参考プランがついていれば、
どんな家が建つのか想像つきますが、
それが無い場合も多いです。
どんな家にしたいか?
理想があると思います。
物件情報があれば、
頑張って最速一晩でプランします!
※ 設計をご依頼くださること前提ですが(^-^;
その土地が可能性あるか?検討するには、
「 不動産屋さん的知識 」
Plus
「 建築屋さん的知識 」
が併せてあった方が、絶対に良いから。。
余談ですが...
購入した土地で設計を依頼されましたが、
どうしても納得いかず、
土地を買い替えた方も、
過去にはいらっしゃいました。。(^-^;
さてさて。。話は戻して。。
スピードが命な物件探し。
土地情報が入ると、
施主さんのご要望を踏まえ、
即プランを描いてみてお送りします。
希望されるエリアだと、
都内では3階建て必至。
普通に流通している土地だと、
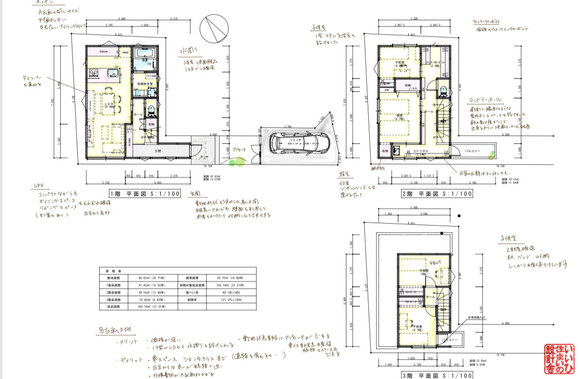
1階に 車庫+1部屋+水周り
2階に LDK
3階に 子供部屋
という、部屋配置になることが多い。
そうなると、
家事動線がどうしても分断されてしまい、
子育て真っ最中で、
時間がタイトなご夫婦には辛い。。
↓ 都内 ある旗竿状敷地での3階建てプラン。
( スクショなので見えにくいですね(^-^; )
南側に建物が建たない空地が在っての
1階LDK+水周りが叶ったプランでしたが、
なかなか、そんな土地は出ません。
都内で密集した地域だと、
気になるのはやはり災害時のこと。。
等々モロモロを考えて決めかねていたら、
この土地は、早々にsoldout。
不動産物件はご縁ものだから。
きっと他にご家族にぴったりなトコロに繋がる!!
そう信じてのキモチの切り替えも、
物件探し時には大切(*^-^*)
都内なら、広めのマンションも視野に。
ただ、お子さんが居らっしゃると、
下階への音問題が気になったり、
物理的な広さがやはり小さかったりするので
決め手に欠けました。
同じ時期、
流山でも気になる物件が出たので、
プランを入れ検討材料に。。
郊外だと、LDK+水周り 同階で、
のびのびと広い2階建てが叶う。。
↓ 出させていただいたプランの一例。
土地がゆったりしているので、
1階にLDK+水周り
+ 洗濯→日常衣類収納動線
は叶いそうでした。
この土地検討中に、
東京で地震があり...
郊外の安全性が優位になり、
この土地に決められました。
その後プランは、
色々と提出させていただき検討。
↓ 迷われたこと。
☑ 小屋裏収納をつけるか否か。
→ コストも嵩むし不要物が増えるだけでは?
ならばやめようか。
☑ 2階の室内干しスペースは本当に要るのか?
→ ガス乾燥機 乾太くん導入すれば要らない。
☑ 子供部屋をどう割り振るか?
→ 女の子2人。男の子1人。
此処は契約直前まで迷われましたが、
二部屋を繋げた①子供部屋
小さな②子供部屋 に決定。
意図は、広い部屋も確保しつつ
どんな風にも出来るよう部屋数を確保。
結果。
↑ UPしたプランよりも、
よりシンプルな空間構成に決定。
大きなパントリーが付きました!
ざっくりと書いてしまいましたが、
ひとつひとつを決めることは、
大変なエネルギーの要ることです。。
プランは考え出したらきりが無いのも事実。
プロの提案をしっかりと受け止め、
暮らしに照らし合わせて考え選び取ったモノが、
そのご家族にとっての正解!!(^^)v
流山の家。
次回は...
工事中のことをUPいたします!
ここまで読んでくださって、
ありがとうございましたm(__)m
↓ 今日の猫PHOTO♪
我が家の愛しい茶色たちです♡^m^♡
週末...金曜日ですね!
東京の桜も満開。
そして晴れ♡
カメラ持ちだし外に出かけたい!!
お出かけ欲がムズムズ。。(^-^;
このうららかな春の一日。
穏やかに過ごせますよう。
今日も明日も明後日も
笑顔が訪れる
いいひ でありますよう♡
読んでくださった皆さまにとって
素敵な 'いいひ' が訪れますよう...
家での日々の暮らしが心地よいことが
住む人の幸せに繋がります!!
心を込めて ♪ (出美)
≪ 過去記事もよろしかったらどうぞ♪ ≫
過去ブログを辿ると
それぞれのご家族にそれぞれの人生の選択肢があったのだと。。
しみじみと感じ入ります(*^-^*)
「 土地のレベル決め_土地探しからの家づくり 」
「 夏のはじまりの地鎮祭_住み替え・土地探しからの家づくり@北本の家 」
「 郊外に住まう幸せ♪猫と庭と薪ストーブを愉しむ家@吉川_暮らしを訪ねてVol.1 」
「 間取りのチカラと素材のチカラ_子育てのびのび&快適!回遊できる間取りと自然素材マンションリノベ_市川Sさんの家 」
















